












Există locuințe frumoase, și există locuințe care inspiră. Acest apartament tip duplex din Apollo Resindece apartine celei de-a doua categorii. O proprietate unde designul, confortul și calitatea construcției se întâlnesc într-o armonie perfectă.
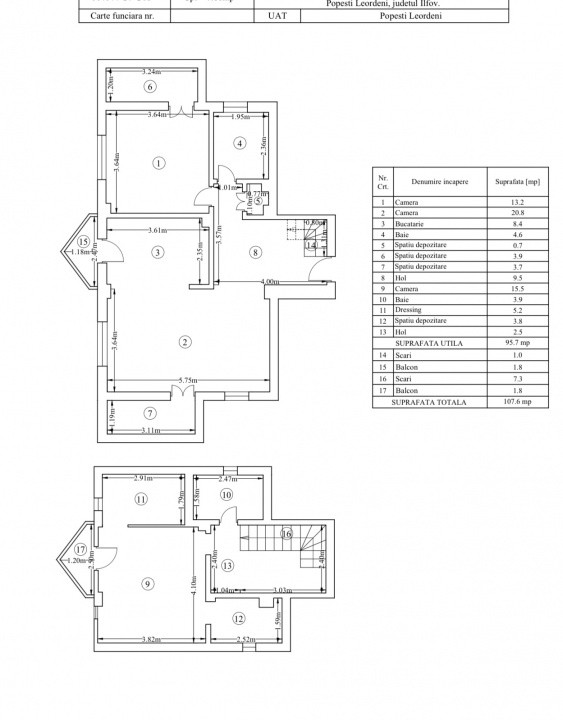
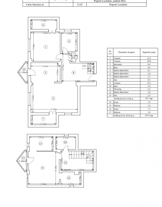
Cu o suprafata totala de 107,6 mp, si o compartimentare decomandata, duplexul impresioneaza prin spatiul sau fluid, organizat pe doua niveluri, unite printr-o scara interioara eleganta, care devine elementul central al casei. Renovat integral, apartamentul se prezinta impecabil, cu finisaje contemporane si o atentie desavarsita la detalii. Fiecare spațiu a fost gândit pentru a oferi confort, lumină naturală și o atmosferă sofisticată, potrivită unui stil de viață modern. La primul nivel, spatiul de zi cucereste printr-un living impresionant, cu bucatarie open - space, ideal pentru serile in familie, sau momentele de relaxare, completat de un dormitor luminos si o baie moderna. La etaj, intimitatea este deplina: dormitorul matrimonial dispune de dressing si baie proprie, transformand etajul intr-un refugiu personal, plin de calm si eleganta.
Situat într-un ansamblu securizat, cu reputație excelentă, acest duplex oferă un stil de viață echilibrat — aproape de oraș, dar cu liniștea unei comunități moderne.
Pentru stabilirea unei vizionari, nu ezitati sa ma contactati.
Comisionul agentiei este de 2% din pretul de tranzactie.